“Fully renovated 17-acre horse lover’s dream.” | Lynchburg, Lynchburg County, Virginia | Horse Farms | Horse Property For Sale | Equestrian Estate
Back
$1,850,000

“Fully renovated 17-acre horse lover’s dream.”

Lynchburg , Lynchburg County , Virginia

16.74
ACRES
5
BEDROOMS
7
BATH
4700
SQ FT
hay barn • fenced • pool

Property description

Nestled on approximately 17 private acres, this fully renovated modern farmhouse is a remarkable estate that prioritizes acreage, ambiance, and equestrian lifestyle over just interior appeal. Just 15 minutes from Liberty University and with no HOA, it offers a rare combination of seclusion and convenience—all within city limits.

Land & Outdoor Highlights
Expansive grounds: Offering nearly 17 acres of lush, fenced pastures—an ideal setting for horses, goats, chickens, or other farm-life interests.
Turnkey farm infrastructure: Includes fully fenced pastures, a natural stream, animal pens, and stables—perfect for equestrian activities from day one.
Barn & guest quarters: The property features a massive, recently renovated barn with a heated 4-car garage and a 520 sq ft guest apartment, complete with a full bathroom—delivering both function and flair.

Lifestyle & Entertainment Amenities
Resort-style poolscape: Dive into a luxurious outdoor experience with a pool that includes a diving board, slide, and adjacent hot tub—perfect for leisure or grand summer gatherings.
Outdoor oasis: Featuring a cabana with its own bath, a firepit for cozy gatherings, and a full basketball court for recreation and play.
Unique play feature: A climate-controlled treehouse with a zipline adds a whimsical, memorable touch for families and guests alike.
Setting & Location Benefits
Secluded yet central: Enjoy peaceful, private surroundings without sacrificing easy access to Lynchburg’s conveniences.
Whether it's a peaceful equestrian retreat, a family compound, or a venue for entertaining, this property offers unmatched flexibility thanks to its generous acreage and thoughtful layout.


Details

Home Features

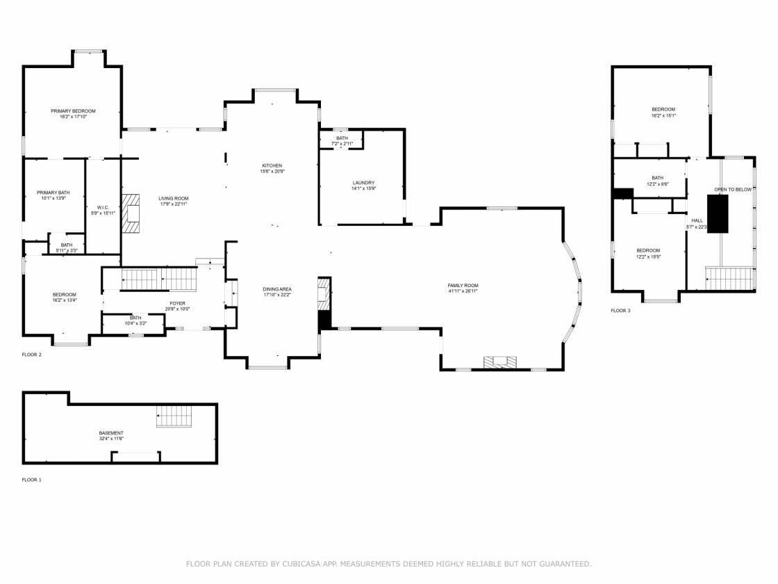
  • Welcome to a residence where modern renovation meets timeless farmhouse charm. This expansive estate home has been fully updated inside and out, offering a seamless blend of comfort, functionality, and luxury across more than 4700 sq. ft. of finished living space.
  • Main Living Spaces
  • From the moment you step inside, you’ll notice the airy, open layout designed to bring people together while still allowing for quiet retreats. Freshly painted walls, updated lighting, and large windows allow natural light to pour in, highlighting the crisp, clean finishes throughout. Multiple living areas provide both formal and casual gathering options—perfect for entertaining or cozy nights at home.
  • Kitchen & Dining
  • At the heart of the home, the remodeled kitchen impresses with custom cabinetry, gleaming countertops, high-end stainless steel appliances, and a spacious island. The thoughtful design makes this kitchen as functional as it is beautiful, flowing effortlessly into dining and family spaces. Whether you’re hosting a large dinner party or enjoying a quiet morning coffee, this kitchen is built to be the hub of the home.
  • Bedrooms & Bathrooms
  • With five generous bedrooms, everyone has room to spread out. The primary suite is a true retreat—completely reimagined with a spa-like bathroom featuring a soaking tub, walk-in shower, and dual vanities, plus a custom-designed walk-in closet that feels more like a boutique dressing room. Additional bedrooms are spacious and versatile, perfect for children, guests, or even office space. Bathrooms throughout the home have been thoughtfully updated with modern finishes, stylish tile, and quality fixtures, including four full baths and three half baths for convenience.
  • Guest & Extended Living Options
  • One of the standout features is the barn conversion, now serving as a garage with a finished living space above. This bonus area includes a bedroom, full bath, and compact kitchen/living space—ideal for overnight guests, multi-generational living, or a private office suite.
  • Entertainment & Lifestyle Amenities
  • Step out from the main house to enjoy a seamless connection between indoor and outdoor living. A resort-style pool with built-in hot tub, new patio, and lounging areas makes summer days feel like a vacation at home. Whether you’re hosting large gatherings or enjoying a quiet evening under the stars, the flow from the interior to the pool and patio is both elegant and practical.
  • Finishes & Upgrades
  • No detail has been overlooked in this full renovation. From the new roof to updated flooring, fixtures, and interior finishes, the home is move-in ready with all the upgrades already completed. High ceilings, quality trim work, and carefully chosen materials give the home a polished, upscale feel while still honoring its farmhouse roots.

Lot Features

  • Set on nearly 17 acres, this estate offers a rare combination of privacy, open space, and usable land just minutes from the conveniences of Lynchburg. The property unfolds like a private retreat, blending gently rolling terrain with fenced pastures, wooded privacy, and resort-style outdoor amenities.
  • The acreage is thoughtfully laid out to maximize both beauty and function. Expansive pastures, already fenced and ready for horses or livestock, make this property a natural choice for equestrian enthusiasts or anyone seeking a small farm lifestyle. A natural stream winds through part of the land, adding character and ensuring a peaceful backdrop. Mature trees border the property, giving a sense of seclusion while still maintaining sweeping open views.

Horse Facility Features

  • 17 acres of usable land – ideal for horses, livestock, or hobby farming
  • Fenced pastures – ready for immediate use for turnout or grazing
  • Large renovated barn – includes:
  • Heated 4-car garage on the main level
  • Space for stables/animal housing
  • Finished living quarters above (bedroom, bath, kitchen/living) – perfect for barn manager, trainer, or guests
  • Animal pens already in place for livestock or smaller farm animals
  • Natural stream runs through part of the property, offering a water source and scenic value
  • Open rolling terrain + wooded privacy – plenty of riding space on property, plus areas to create trails
  • No HOA restrictions – freedom to build additional barns, arenas, or riding facilities if desired

Distances

  • 3 miles to schools
  • 12 miles to airports
  • 3 miles to hospitals
  • 2 miles to shopping
  • 3 miles to trails


Information deemed reliable, but not guaranteed. Buyer to verify all information


Location

106 Two Creek Dr, Lynchburg, Lynchburg County, Virginia

REQUEST MORE INFORMATION


SEARCH PROPERTIES



SIMILAR LISTINGS

© 2025. HorseProperties.net®. All rights reserved.