Horse Property with Beautiful Views
Oldfield, Christian County, MissouriACRES
BEDROOMS
BATH
SQ FT
Property description
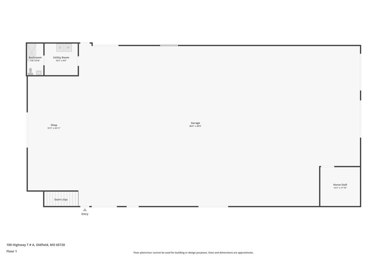
ULTRA-RARE COMMERCIAL-GRADE EQUESTRIAN ESTATE | 101.8 ACRES | INCOME-READY Rarely does an opportunity of this caliber present itself. 101.8 acres of prime Ozarks real estate featuring 2022 custom construction with infrastructure most buyers couldn't replicate for under $1.4 million today. THE INFRASTRUCTURE ADVANTAGE 5,000 square foot workshop with 22-foot ceilings, 18 feet of clear span. Six commercial overhead doors, hot/cold water throughout, spray foam insulation. THREE electrical service boxes and THREE water hydrants distributed across the property--the bones of an RV park, horse boarding operation, or agritourism venture already in place. Two RV hookups: climate-controlled indoor bay at 30-amp (unicorn feature) plus exterior 50-amp with full utilities. Professional equestrian facility with 12x12 stall, two auto-waterers, cross-fenced pasture. Extra materials included for expansion. THE LAND 75% cleared and cross-fenced. 40 acres managed pasture ready for livestock or hay. Two ponds (one spring-fed), wet-weather creek, 400' well with new pump. Borders Mark Twain National Forest. Exceptional hunting for deer and turkey. THE RESIDENCE 1,000 sq ft luxury living: 3 bed/2 bath, granite counters, custom cabinetry, and 600 sq ft elevated deck with panoramic Ava valley sunrise views. THE STRATEGIC PLAY Douglas/Christian County border = Christian County convenience with Douglas County taxation (40% lower). Paved access, custom gated entrance, fiber optic internet, $5,000 cell booster included. 45 min to Branson, 45 to Springfield. THE BOTTOM LINE Turnkey 2022 construction. Move in tomorrow, generate income next week through RV storage, horse boarding, agricultural lease, or agritourism. Luxury living plus commercial infrastructure on 100+ premier Ozarks acres. This doesn't come back around. See attached document for more information!
Details
Home Features
- THE INFRASTRUCTURE PLAY
- Let's talk about what makes this property genuinely rare: a 5,000 square foot workshop with 22-foot ceilings and 18 feet of clear span under the rafters. Six commercial overhead doors (two 14-footers, three 10-footers, one 7-footer), hot and cold water rough-in throughout, and spray foam insulation that keeps operational costs low year-round.
- Here's where it gets interesting for the income-focused buyer: THREE separate electrical service boxes and THREE water hydrants strategically distributed across the acreage. Translation? You've got the bones of an RV park, horse boarding operation, or agritourism venture already in place. The heavy lifting is done.
- Two RV hookups ready to go: one climate-controlled indoor bay at 30-amp (because who else offers THAT?), plus an exterior 50-amp setup with full utilities. The indoor bay alone is a unicorn feature that opens the door to premium storage rates.
Lot Features
- THE LAND
- 101.8 acres that's 75% cleared and cross-fenced—you're not clearing timber for five years to make it functional. Approximately 40 acres of relatively flat, managed pasture ready for livestock, hay production, or whatever agricultural venture fits your vision. Two ponds (one spring-fed with year-round water), wet-weather creek, 400-foot well with brand new pump, and mature timber bordering Mark Twain National Forest.
- Exceptional hunting. White-tailed deer, turkey, black bear. Multiple building spots if you want to develop or create a family compound.
Horse Facility Features
- THE EQUESTRIAN SETUP
- Professional-grade horse facility featuring a 12x12 stall inside the climate-controlled shop, two automatic horse waterers, cross-fenced pasture, and distributed water/electric that supports immediate boarding operations. Extra stall fronts and garage door included for easy expansion. The infrastructure supports 6+ stalls if you want to scale up.
Distances
- 23.4 miles to schools
- 47.9 miles to airports
- 35.8 miles to hospitals
- 14 miles to shopping
- 0 miles to trails
Location
HCR 69 Box 100, Oldfield, Missouri































