17 Acres of Rare Michigan Beauty | Grand Rapids, Kent County, Michigan | HorseProperties.net
Back
$1,250,000

17 Acres of Rare Michigan Beauty

Grand Rapids , Kent County , Michigan

17.96
ACRES
3
BEDROOMS
4
BATH
2481
SQ FT

Property description

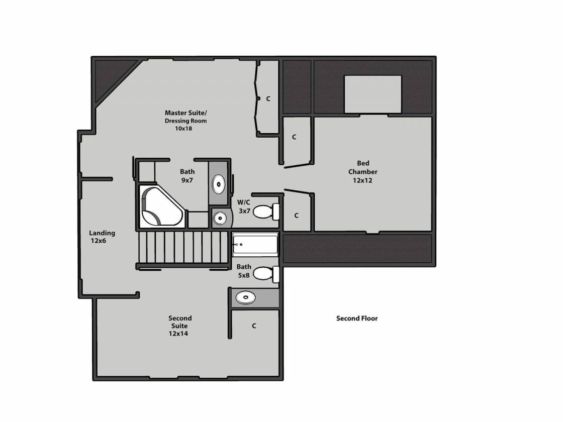
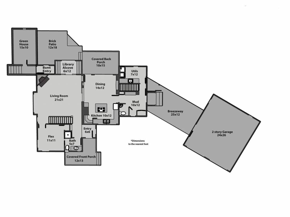
See Facts & Features for full video tour. Seventeen acres of rare Michigan beauty, located just minutes from downtown Ada and Knapps Corner This extraordinary 3-bedroom, 4-bathroom estate offers a private, soul-centered retreat inspired by the design philosophies of architect Christopher Alexander. Every space has been shaped with intention, from intimate indoor rooms to open-air living environments that blend seamlessly into the surrounding topography. The existing homestead reflects old-world charm, with timeless red brick, English-cottage detailing, and garden spaces ready for restoration or reinvention. The walkout lower level offers expansion potential for a fourth bedroom, in-law suite, or creative workshop, making this property adaptable for multigenerational living.

Mature hickory and walnut trees line the property alongside newly planted redbuds. Seasonal morel mushrooms, moss-covered paths, acorns underfoot, and the sounds of native birds make this land feel alive in every season. With natural grading ideal for trails, horses, and future architectural expansion, this is a rare opportunity to create something generational.

For those drawn to beauty, privacy, and creative vision, this is more than real estate. It is a canvas. A calling. And a once-in-a-lifetime setting for your legacy to take root. Includes Parcel # 411401226002


Details

Distances

  • 12 miles to airports
  • 9 miles to hospitals


Information deemed reliable, but not guaranteed. Buyer to verify all information


Location

3705 Grand River Dr NE, Grand Rapids, Kent County, Michigan

REQUEST MORE INFORMATION


SEARCH PROPERTIES



SIMILAR LISTINGS

© 2025. HorseProperties.net®. All rights reserved.